 |
 |
 |
 |
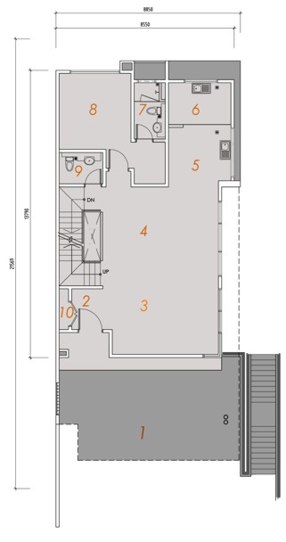
Aras Bawah
1. Anjung Kereta
2. Laluan Masuk
3. Ruang Tamu
4. Ruang Makan
5. Dapur Kering
6. Dapur Basah
7. Bilik Air 1
8. Bilik Tetamu
9. Bilik Air
10. DB |
Aras Bawah Rendah
11. Suite Junior
12. Ruang Keluarga
13. Yard
14. Ruang JEmur
15. Stor
16.
Bilik Air 6
17.
Bilik Air 3
18.
Bilik Tidur 3
19.
Bilik Tidur 4
20.
Bilik Air 4
21. Stor
22.
Bilik Air 2
23. Teres 1
24. Teres 2 |
Aras Atas
25. Suite Utama
26. Ruang Belajar
27. Ruang Tamu
28. Bilik Pakaian
29. Bilik Air Utama
|
Aras Bumbung
30. Teres Bumbung |
|
|
|
|
|
|
SPESIFIKASI |
|
|
|
|
Struktur : |
Kerangka Konkrit Bertetulang |
|
Dinding : |
Batu-bata |
|
Bumbung : |
Bumbung Rata Konkrit Bertetulang /
Jndela Langit Kaca |
|
Siling : |
Skim Coat / Siling Plaster |
|
Pintu : |
Pintu Kayu / Pintu Kayu Flush / Pintu
Kayu Louver / Pintu Gellongsor Kaca Bingkai Aluminium /
Pintu tingkap Kaca Bingkai Aluminium |
|
Tingkap : |
Tetingkap Kaca Bingkai Aluminium |
|
Kemasan Lantai : |
Jubin
Laluan Masuk / Ruang Tamu / Ruang Makan / Dapur Kering /
Dapur Basah / Stor / Yard / Ruang Jemur / Teres / Balkoni /
Bilik Air
Lantai Kayu Laminated
Bilik Tidur / Ruang Keluyarga / Tangga Dalaman
Granotithic Chipping
Anjung Kereta / Tangga Luaran
Lepaan Simen
Teres Bumbung |
|
Kemasan Dinding : |
Jubin Dinding Sampai Ketinggian
Siling
Dapur Kering / Dapur Basah / Yard / Bilik Air
Plaster Simen Dengan Cat
Dinding Luaran & Dalaman |
|
Sanitary Installation : |
Jenis A
Sinki Dapur (2), WC (7), Basin (9), Tub Mandi (1), Shower
(7)
Jenis B
Sinki Dapur (2), WC (7), Basin (8), Tub Mandi (1), Shower
(6)
Jenis C
Sinki Dapur (2), WC (7), Basin (8), Tub Mandi (1), Shower
(6) |
|
Pasangan Elektrik : |
13 Amp Soket, Lampu, Lampu Pintu Pagar,
Penghawa Dingin, Kipas Siling, TV, Telefon, Pemanas Air,
Auto Gate, Loceng Pintu, Intercom |
|
Ironmongery : |
Lockset Berkualiti Dengan Aksessori |
|
Pagar : |
Pagar Logam |
|
Lain-lain : |
Kebuk Sampah, Peti Surat, Ruangan Meter |